Contact-us

Non più disponibile


 
Rent
12500 €

MILANO - Via Ravizza

Via Ravizza Milano

  • Use Residential
  • Floor su 4 piani
  • City Milano
  • Availability Available
  • Contract Rent
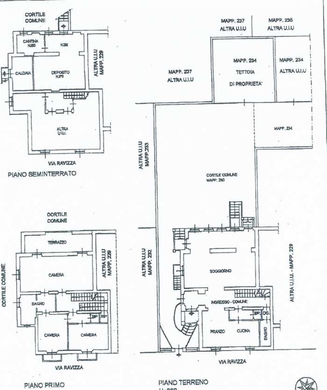
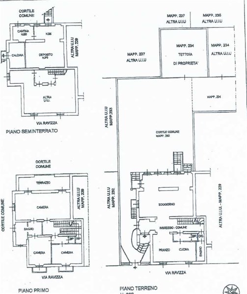
  • Surface MQ 600
  • Kitchen abitabile
  • Rooms 6
  • Furniture Semi furnished / unfurnished
  • Parking space

Fair area - Via Ravizza (red subway line, Amendola exit). This is a charming and elegant tree lined street in Milan is known for its beautiful old family villas surrounded by gardens, giving the impression of being in a gentrified town in the country rather than in a vibrant city. This is the same impression that this  independent villa gives. It is a gracious turn of the century family villa in excellent condition, of 600sqmt on 4 floors with a lift and a delightful garden with covered green areas for summer dining. There is a double living room with a beautiful fireplace, 5 /6 bedrooms (one is very big with a fireplace and a private terrace), 6 bathrooms, a large room full of wardrobes, a study, a beautiful furnished kitchen and a lovely attic with its private bathroom which could be the 6th bedroom, a delightful play area or granny flat. The lower floor has a service room and bathroom, a laundry and large storage room. The garage holds 3 cars and there is also parking for more cars on the property. Electric gates. Hardwood floors. Air conditioned. Alarm system. Available. Energy Certificate F 162,59 kWh/m2a.

Maps

*
*
*
*
*
control code