Contact-us

 
Sale
1160000 €

Elegante apartment for sale Milan - Via Joe Colombo

Via Joe Colombo Milano 

Features
  • Type Residential
  • Floor
  • City Milano
  • Availability Disponibile al rogito
  • Contract Sale
Property Details
  • Size (sqm) 90
  • Kitchen parzialmente a vista
  • Bedrooms 1
  • Furnished Furnished
  • Parking Space box grande
Description

Porta Nuova - Via Joe Colombo 16
In the new area of Porta Nuova, Milan's most renowned and futuristic district, which represents one of the most interesting examples of urban redevelopment in the heart of a modern European city that has redesigned and redefined both its skyline and its character, and which offers a rich network of public transport links, 20 minutes from Linate airport, 5 minutes on foot from Garibaldi station, a short walk from Brera and the centre of Milan (green, yellow and lilac metro lines and the railway link).
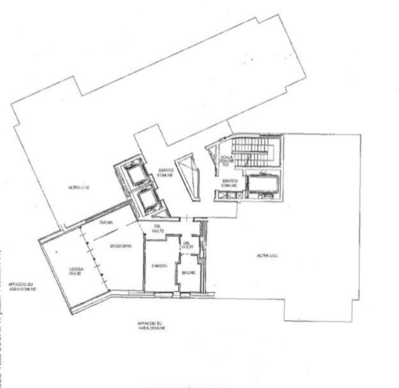
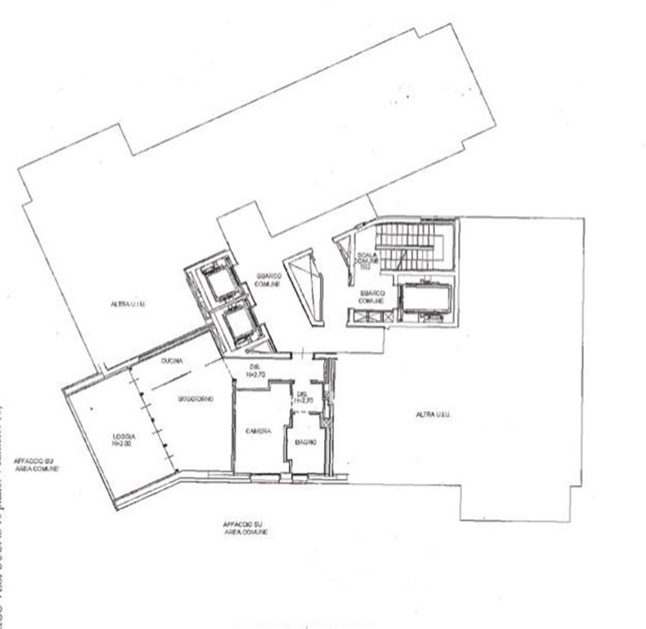
The property is located in Torre Solea, one of the three residential towers designed by Miami Arquitectonica with studio Caputo. This apartment, on the 2nd floor, elegant and prestigious, has a wonderful 30sqm terrace with plants and has a panoramic view
The commercial area of approximately 90sqm comprises an entrance, a living/dining room with a partially open kitchen and a double bedroom with a walk-in wardrobe. Large full-wall windows connect the living room with the terrace, giving a feeling of great spaciousness. 
The furnishings, carefully and harmoniously designed are included in the price. The building boasts a state-of-the-art security system.
Energy Class B 40.5 kWh/m2a year.
Centralized hot water, heating and cooling. 24 hour concierge service.
Sale price for the flat and a cellar: € 1.160,000 plus € 100.000 for a large garage of 20 sqm.

Location Map
*
*
*
*
*
*
*
*
control code