Contact-us

 
Sale
560000 €

Appartamento in vendita Milano - Via San Vito

Via San Vito Milano 

Features
  • Type Residential
  • Floor
  • City Milano
  • Availability Nuda proprietà
  • Contract Sale
Property Details
  • Size (sqm) 118
  • Kitchen semi abitabile
  • Bedrooms 2
  • Furnished Semi furnished / unfurnished
  • Parking Space
Description

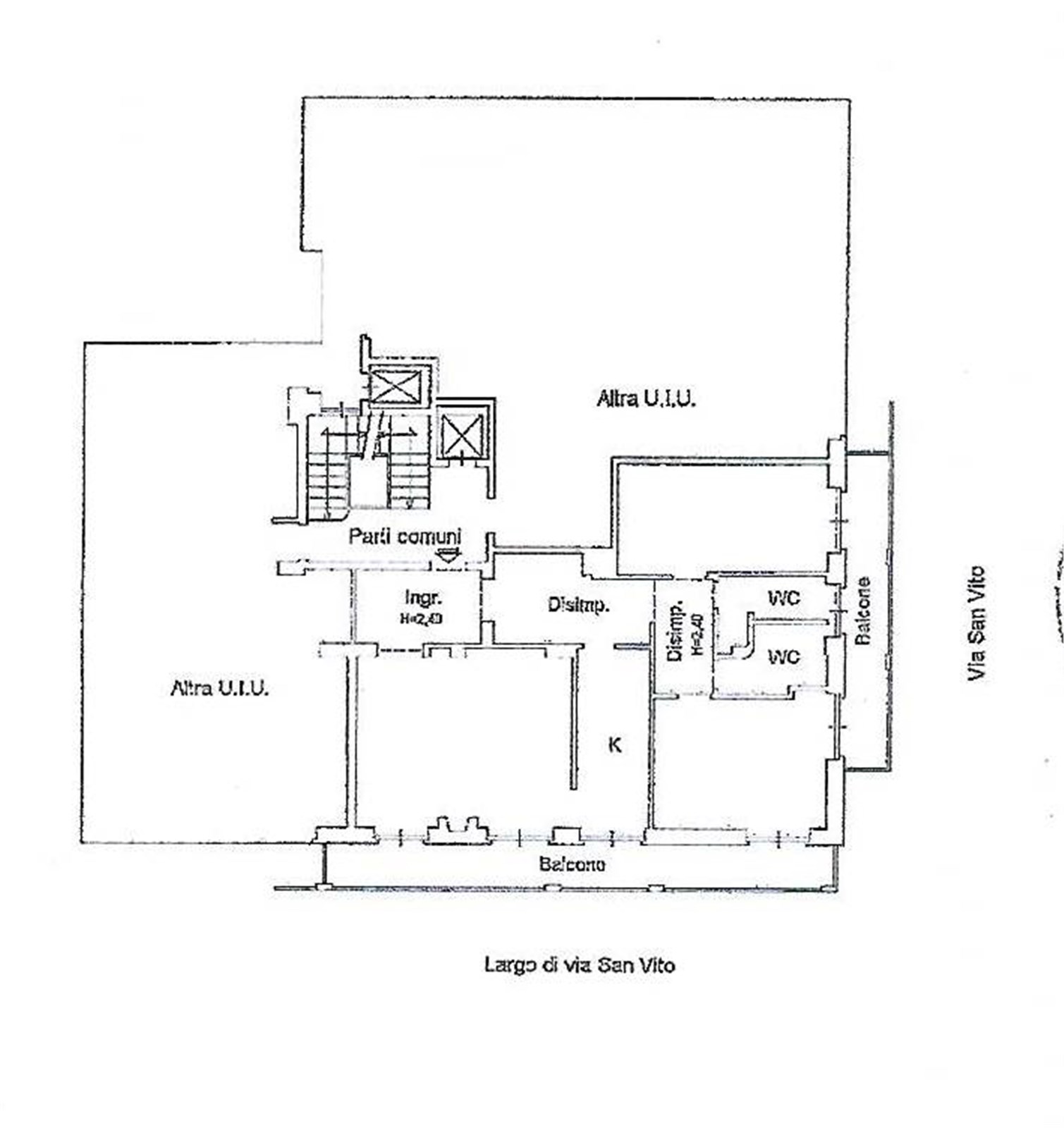
Via San Vito. In posizione centralissima e di grande pregio, ma nel contempo residenziale e riservata, a soli 10 minuti a piedi dal Duomo e da Piazza Sant’Ambrogio, proponiamo in vendita la NUDA PROPRIETA’ di un bell’appartamento posto al 4° piano di uno stabile moderno con ascensore e portineria. 
La superficie abitativa di 118 mq si compone di un ingresso, un accogliente e luminosissimo soggiorno doppio, che, tramite l’ampia balconata, gode di un gradevole affaccio sui giardinetti sottostanti. Adiacente al soggiorno è presente una cucina semi-abitabile.  Nella zona notte troviamo 2 ampie camere da letto, 2 bagni e un’altra lunghissima balconata. L’immobile si presenta in buonissimo stato di conservazione.
L’appartamento è silenziosissimo, con doppia esposizione angolare, completamente inondato dalla luce grazie alla felice posizione sud – ovest.
Aria condizionata.
Riscaldamento centralizzato a pavimento.
Servizio di portineria mezza giornata.
Spese condominiali: € 5.600/anno compreso il riscaldamento. 
Richiesta: € 560.000

Location Map
*
*
*
*
*
*
*
*
control code